Réf : LAVRE130002904
Coup de coeur

Antibes (06600) 2/3 pièces vue mer avec belle terrasse et jardin privé, piscine, tennis

3 Pièce(s)
2 Chambre(s)

Les infos Essentielles

Caractéristiques Valeurs
Code postal 06600
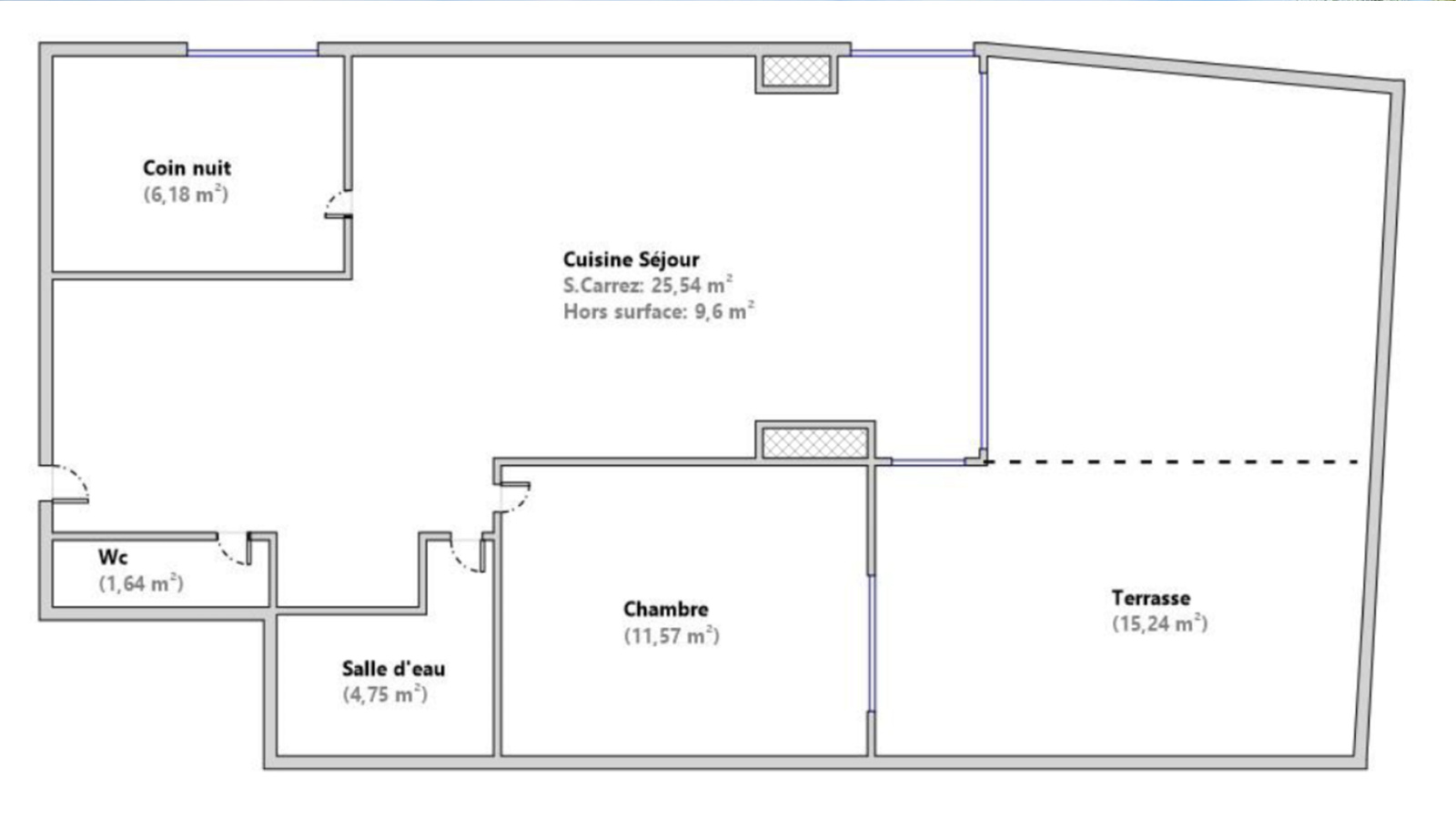
Surface habitable (m²) 59,28 m²
Surface loi Carrez (m²) 49,68 m²
Nombre de chambre(s) 2
Caractéristiques Valeurs
Nombre de pièces 3
Nombre de niveaux 1
Ascenseur OUI
Vue dégagée et aperçu mer
Caractéristiques Valeurs
Nb de salle d'eau 1
Cuisine Américaine
Type de cuisine Equipée
Mode de chauffage Autre
Caractéristiques Valeurs
Type de chauffage Radiateur
Format de chauffage Collectif
Interphone OUI
Terrasse OUI
Caractéristiques Valeurs
Cave OUI
Exposition Est
Année de construction 1970
Copropriété OUI
Caractéristiques Valeurs
nombre de lots 29
Quote Part annuelle des charges 2 109 €
plan de sauvegarde NON
statut du syndic pas de procédure en cours

Dans une résidence intimiste avec piscine et tennis, découvrez ce 2/3 pièces de 59 m², issu de la transformation réussie d’un 2 pièces agrandi par une véranda.

Rénové avec soin, il offre une distribution optimisée et un confort actuel comprenant séjour lumineux avec cuisine ouverte équipée donnant sur l'extérieur, chambre principale avec rangements, petite pièce supplémentaire idéale pour un jeune enfant, un bureau ou une chambre d’amis.

Vue mer depuis toutes les pièces, belle terrasse et petit jardin privé prolongent agréablement l’espace de vie.

Une salle de douche contemporaine et un WC suspendu indépendant complètent l’ensemble. Une cave en sous-sol est également disponible.

À seulement 3 minutes à pied des commerces, avec bus et accès rapide au centre-ville, ce bien combine praticité, modernité et belle qualité de vie.

Les infos Financières

Prix de vente 370 000 €
Les honoraires d'agence seront intégralement à la charge du vendeur  
Charges 175 €
Taxe foncière annuelle 758 €

Nos outils

Imprimer

Localisation Du bien

Les infos Energetiques

DPE GES

Montant estimé des dépenses annuelles d'énergie pour un usage standard est compris entre 860 € et 1 230 € . Prix moyens des énergies indexés sur les années 2021, 2022 et 2023 (abonnements compris).

Intéressé(e) par Ce bien ?

* Champ obligatoire

Les informations recueillies sur ce formulaire sont enregistrées dans un fichier informatisé par La Boite Immo agissant comme Sous-traitant du traitement pour la gestion de la clientèle/prospects de l'Agence / du Réseau qui reste Responsable du Traitement de vos Données personnelles. La base légale du traitement repose sur l'intérêt légitime de l'Agence / du Réseau. Elles sont conservées jusqu'à demande de suppression et sont destinées à l'Agence / au Réseau. Conformément à la loi « informatique et libertés », vous disposez des droits d’accès, de rectification, d’effacement, d’opposition, de limitation et de portabilité de vos données. Vous pouvez retirer votre consentement à tout moment en contactant directement l’Agence / Le Réseau. Consultez le site https://cnil.fr/fr pour plus d’informations sur vos droits. Si vous estimez, après avoir contacté l'Agence / le Réseau, que vos droits « Informatique et Libertés » ne sont pas respectés, vous pouvez adresser une réclamation à la CNIL. Nous vous informons de l’existence de la liste d'opposition au démarchage téléphonique « Bloctel », sur laquelle vous pouvez vous inscrire ici : https://www.bloctel.gouv.fr Dans le cadre de la protection des Données personnelles, nous vous invitons à ne pas inscrire de Données sensibles dans le champ de saisie libre.
Ce site est protégé par reCAPTCHA, les Politiques de Confidentialité et les Conditions d'Utilisation de Google s'appliquent.
contacter l'agence
Ces biens peuvent aussi vous intéresser
Saint-Laurent-du-Var (06700)

À vendre – 3 pièces avec terrasse d’angle – Centre-ville de...

Exclusif
Coup de coeur
Antibes (06600)

Élégant 2 pièces en rez-de-jardin avec vue mer, vaste terrasse et...

Nous suivre sur